Biselli Katchborian Arquitetos Associados
Projects
Publications
About
Team
Contact
Português
2008
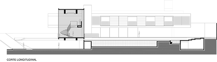
TRD House
PROJECT INFO:
Location: São Paulo - SP
Área: 1.500 m²
Project date: 2008
Conclusion date: 2013